Op het voormalige AKZO-terrein is al enkele jaren een transformatie gaande. Het afgesloten en monofunctionele bedrijfsterrein verkleurt naar een nieuw dynamisch stadsdeel met een mix aan wonen, werken, bedrijvigheid en onderwijs. Een volgende grote stap in deze transformatie is het realiseren van een nieuwe stedelijke woonbuurt: Het Zijdekwartier.
Het Zijdekwartier sluit op eigentijdse wijze aan bij de verschillende tijdsperioden die de plek hebben gevormd. Het verwijst naar het industriële Enka- en Akzo-verleden als ook het agrarische landschap van het Broek en de landgoederen aan de Velperweg. Dit is onder andere zichtbaar gemaakt in de verwijzing naar de oude verkavelingsstructuur van het Broek en de stedenbouwkundig as op de lijn van de voormalige ENKA-toren tot aan de energiecentrale.
Energiehub
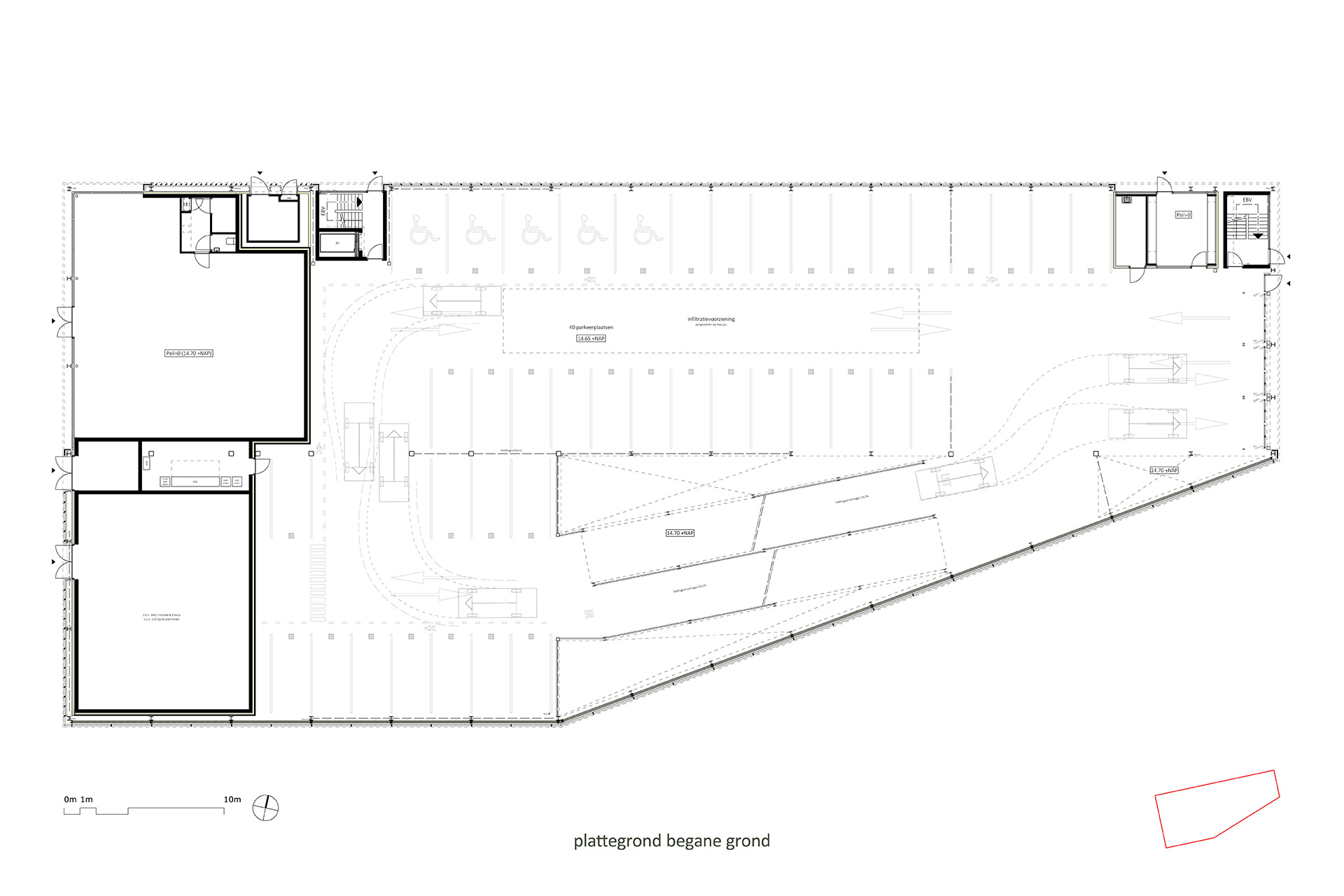
Op de plek van de oorspronkelijke energiecentrale is door opZoom het ontwerp gemaakt voor de nieuwe mobiliteitshub. In deze hub bevinden zich 441 parkeerplaatsen, een commerciële ruimte en de nieuwe energiehub. In het gebouw zijn de inkoop, trafo, laagspanningsruimte én de centrale WKO installatie opgenomen en wekt het gebouw met ca. 650 pv panelen de energie op voor de appartementen van het in het bomen carré gelegen zuidelijk cluster.
Circulair en biobased
Het gebouw heeft een circulair geraamte met een circulair en biobased gevel van houten lamellen en wordt alzijdig ingekleed met gevelbeplanting. Met de lamellen gevel wordt het forse gebouwvolume, passend bij de grotere stedenbouwkundige korrel aan de westzijde van de Enka Campus, ontleed en teruggebracht tot de menselijke maat. Het gebouw toont zich alsof het is opgebouwd uit verschillende delen. In de plint land het gebouw, vindt het zijn aansluiting met de omgeving en krijgen de verschillende functies in het gebouw hun gezicht.
Geluidwering
Aan de spoorzijde krijgt het gebouw een geluidwerende gevel welke is opgenomen in de houten lamellen structuur. Deze dichte en gesloten zichtzijde van het gebouw wordt op twee plekken ingesneden en voorzien van grote met glas gevulde openingen. Op deze wijze wordt vanaf de spoorzijde het interieur van het gebouw zichtbaar.
opdrachtgever
Van de Klok, BPD
ontwerpteam
Bastiaan Buurman m.m.v. Mojdeh Massoumi, Marcel Plomp, Thomas Wehkamp en Maikel Zanfrisco
in samenwerking met
Buro Lubbers, Continental Carparks en SVP Architectuur en Stedenbouw (stedenbouwkundig ontwerp)
project
ontwerp voor de mobiliteitshub met 441 parkeerplaatsen, commerciële ruimte en energiehub
status
omgevingsvergunning











